Kancelárske priestory na prenájom EUROCENTRUM s.r.o.
 
 
Všeobecné informácie o objekte:

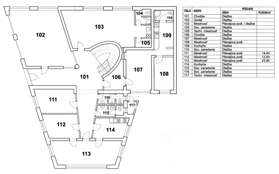
Budova je dvojpodlažná novostavba, na prízemí sa nachádzajú kancelárske priestory a na poschodí dve nezávislé bytové jednotky.

Jej výhodná poloha na ulici Inovecká 16 v Novom Meste nad Váhom umožňuje priamy prístup autom vrátane parkovania. Nachádza sa veľmi blízko centra mesta a námestia. Celá budova je kompletne klimatizovaná s možnosťou ovládať klimatizáciu pre každú kanceláriu a bytovú jednotku samostatne.

Budova s exteriérom je chránená elektronickým zabezpečením a moderným kamerovým systémom.
 

Pozn.: viac fotografií nájdete v sekcii fotogaléria
 
Prízemie:

Na tomto podlaží sa okrem garáží nachádzajú 4 samostatné klimatizované kancelárie. Každá z kancelárií je vybavená kompletným elektrickým rozvodom 220V, prípojkami pre počítačovú sieť - internet a telefón. V budove sa nachádza telefónna ústredňa s dostatkom voľných nezávislých telefónnych liniek.
Po dohode sme schopní zabezpečiť kancelársky nábytok.

Ďalej tu nájdeme dve samostatné WC s umývadlom a vybavenú kuchyňku s varičom, mikrovlnnou rúrou a chladničkou.
   
Poschodie:

Na poschodí sa nachádzajú dve nezávislé bytové jednotky s balkónom. Bytové jednotky sú komplet vybavené tak, aby poskytovali nadštandartné komfortné ubytovanie. Obsahujú zariadenú kuchyňu, oddelené WC a kúpeľňu, šatník, balkón, prípojky na PC sieť, internet, telefón a TV.
Bytová jednotka č.1 - 118,9 m˛
Bytová jednotka č.2 - 129,5 m˛
   
Aktuálny stav voľných priestorov:
obsadenie kancelárií
  

EUROCENTRUM s.r.o., Malinovského 24, 915 01  Nové Mesto nad Váhom, +421 903 814814, e-mail: p.knupp@eurocentrum.sk